Lisboa, Vila Franca de Xira, Alverca do Ribatejo e Sobralinho, Sobralinho (Sobralinho)
Para quem procura espaço, conforto e um ambiente tranquilo, esta moradia no Sobralinho é a escolha ideal!
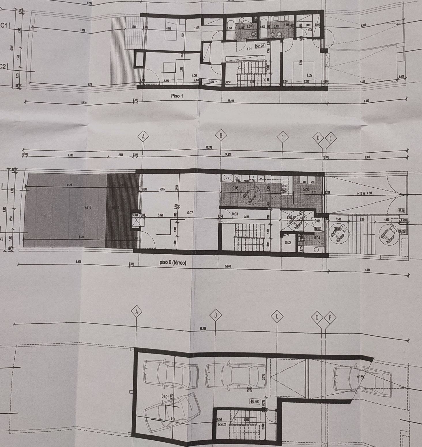
Inserida num lote de 191m², com uma área de implantação de 95m² e uma área total de construção de 284m², esta moradia construída em 2015 destaca-se pelas suas áreas generosas e acabamentos modernos.
Distribuição do Imóvel:
✅ Piso térreo:
- Zona social com sala ampla, cozinha equipada e casa de banho de serviço.
- Lavandaria com acesso direto pela cozinha.
- Jardim espaçoso com árvores de fruto e churrasqueira, perfeito para momentos de lazer com a família e amigos.
✅ Piso superior:
- Suite com closet e casa de banho privativa com base de duche.
- Dois quartos com roupeiros embutidos, um deles com varanda.
- Casa de banho completa com banheira.
- Hall com roupeiro embutido para maior arrumação.
✅ Cave:
- Espaço amplo para arrumos.
- Estacionamento para pelo menos dois carros.
Destaques e Equipamentos:
- Excelente exposição solar
- Janelas de vidro duplo e estores elétricos com corte térmico
- Ar condicionado na sala, suite e num dos quartos.
- Porta de vidro entre a cozinha e a sala
- Poço
Localização e Acessos:
📍 Situada numa zona calma do Sobralinho, esta moradia beneficia de proximidade a:
- Palácio do Sobralinho
- Cafés, restaurantes, comércio local e hipermercados
- Serviços públicos e espaços verdes
- Acesso rápido à N10 e A1
🚍 Transportes:
- Autocarros para a estação CP de Alverca (2306), Vila Franca de Xira (2307) e Campo Grande (2841).
Outras informações:
- Licença de Utilização: nº 64, emitida pela Câmara Municipal de Vila Franca de Xira em 15/09/2015.
- IMI: 543,60€/ano.
Esta é a oportunidade de viver com espaço e conforto numa localização privilegiada!
Marque já a sua visita e venha conhecer esta moradia única!